全国咨询热线
15240445100

江苏楚冠工业科技有限公司

Jiangsu Chuguan Industrial Technology Co., Ltd

匠心铸造卓越,科技引领未来


相关关键词:呼吸阀 过滤器 阻火器 消音器 视镜 配件...
您的位置:
  • 罐壁(顶)通气孔
  • 罐壁(顶)通气孔

    罐壁(顶)通气孔用于保护内浮盘,避免内浮顶罐浮盘上部在介质进出时产生正、负压,按规范在罐壁或罐顶开设。其总通气面积S≥0.06D(D为储罐内径),与罐壁连接方式有焊接和螺栓连接,焊接适用于可动火情况,螺栓连接用于不允许动火情况。有罐壁通气孔(型号:ZL - KB400*700)和罐顶通气孔(型号:ZL - KD400*700)两种型号,材质包括普通钢板、不锈钢板、钢丝网。订货时需提供储罐内径、数量、规格、型号并注明材质。 

    • 0.00
      0.00
商品描述

罐壁(顶)通气孔用于保护内浮盘,避免内浮顶罐浮盘上部在介质进出时产生正、负压,按规范在罐壁或罐顶开设。其总通气面积S≥0.06D(D为储罐内径),与罐壁连接方式有焊接和螺栓连接,焊接适用于可动火情况,螺栓连接用于不允许动火情况。有罐壁通气孔(型号:ZL - KB400*700)和罐顶通气孔(型号:ZL - KD400*700)两种型号,材质包括普通钢板、不锈钢板、钢丝网。订货时需提供储罐内径、数量、规格、型号并注明材质。 


一、产品概述:
  为保护内浮盘不使内浮顶罐浮盘上部在介质进出时不产生正、负压,按规范在罐壁或罐顶开设通气孔。


二、罐壁(顶)通气孔数量:
  按规范罐壁(顶)通气孔总通气面积S≥0.06D D-储罐内经(m)


三、与罐壁的连接:可焊接和螺栓连接,一般可动火情况采用焊接;螺栓连接用于不允许动火的情况。


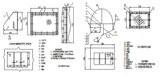
四、罐壁(顶)通气孔结构示意图:(组成如图)
  罐壁通气孔(型号:ZL-KB400*700)     罐顶通气孔(型号:ZL-KD400*700)

 

五、产品材质:
  普通钢板、不锈钢板、钢丝网。


六、订货需知:
  订货时需方需提供储罐内经ф及数量、规格、型号并注明材质。


Product Center
产品中心
全国咨询热线
15240445100